Flat Pack Shipping Containers Anti-vandal ticket booth
CS101707
Pricing
*Call For Delivery Costs
				Nestled at the end of the world's longest pleasure pier in Southend-on-Sea, Essex is a small ticket booth from Containers Direct.  A mile and a third away from the shore, visitors can buy their ticket for the return journey on the historic pier train, if  the long and windy walk there was a little too much to repeat.
The Southend Pier and Railway ticket booth has been charmingly decorated to resemble a Punch and Judy booth on the outside - we provide the bread and butter and the fun part is down to our client!
Looking for something similar? Call our sales team on 0800 061 2575
The Southend Pier and Railway ticket booth has been charmingly decorated to resemble a Punch and Judy booth on the outside - we provide the bread and butter and the fun part is down to our client!
Looking for something similar? Call our sales team on 0800 061 2575
CD Code CS101707
 
  
 
Click to expand>>
	
	
	 
	
	
	 
	
	
	 
	
	
	 
 
Features
Design
Special features
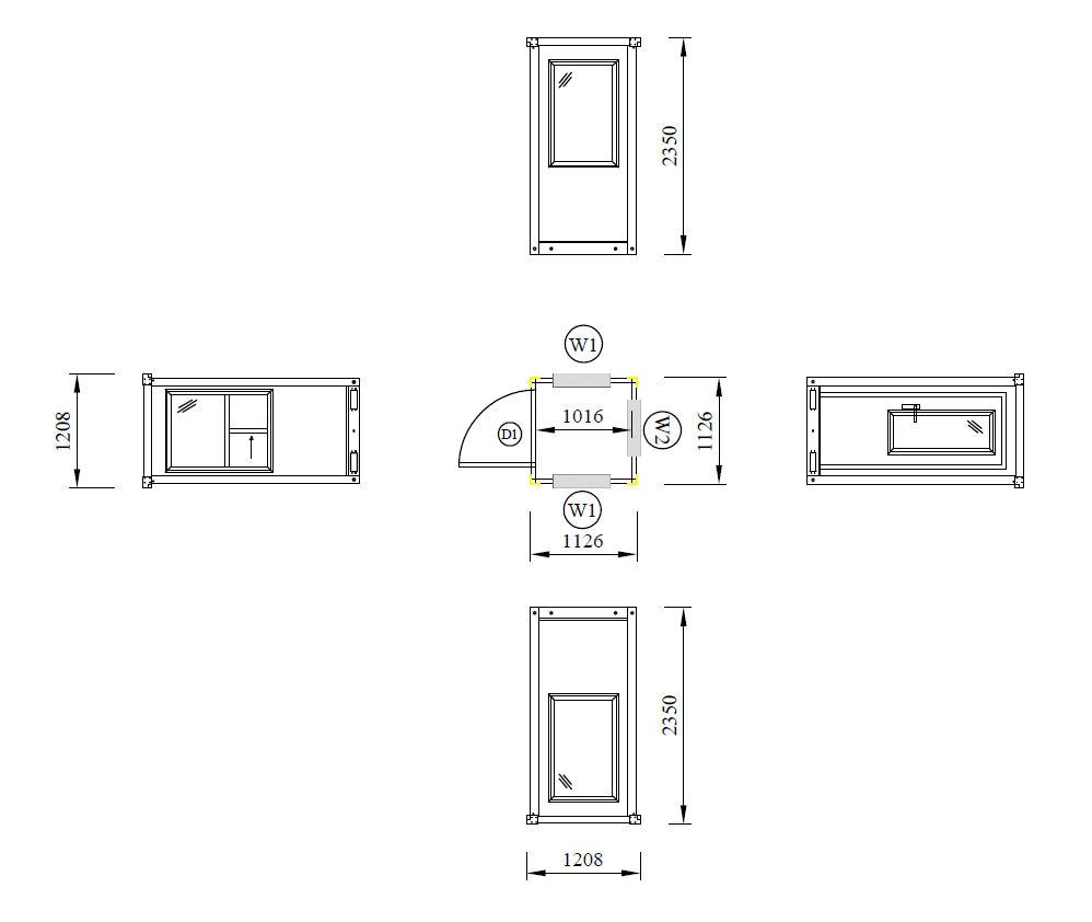
- Dimensions: 1.1m x 1.1m x 2.3m
- Powder coated green exterior
- Door panel with window
- 2 x half height window panels
- Half height window panel with opening pane
- Lined and insulated
- Fork lift pockets
- Electrics pack
Our flat pack kiosks can be used for a wide range of applications, including ticket sales and entry checks for events and attractions, as shown here. They can be a permanent fixture on site, or used as a temporary pop-up booth for special events, festivals and construction site security.  With the option to add an electrics pack, there's room inside to fit a small plug in heater and a kettle for a steaming mug of tea on colder days. Portable, durable, secure, warm and dry, the booth can travel with you disassembled wherever required - it even fits in a transit van!
 
Find out more about our security kiosks and booths, including our larger portable cabins for public facing checks and assistance.
Find out more about our security kiosks and booths, including our larger portable cabins for public facing checks and assistance.
The design

Click to expand>>
People who viewed this product also viewed:
As with any product, specification is subject to change without prior notification. You are advised to confirm current specification before buying.

 
			



